AV EJERCITO 1190, MIRAFLORES
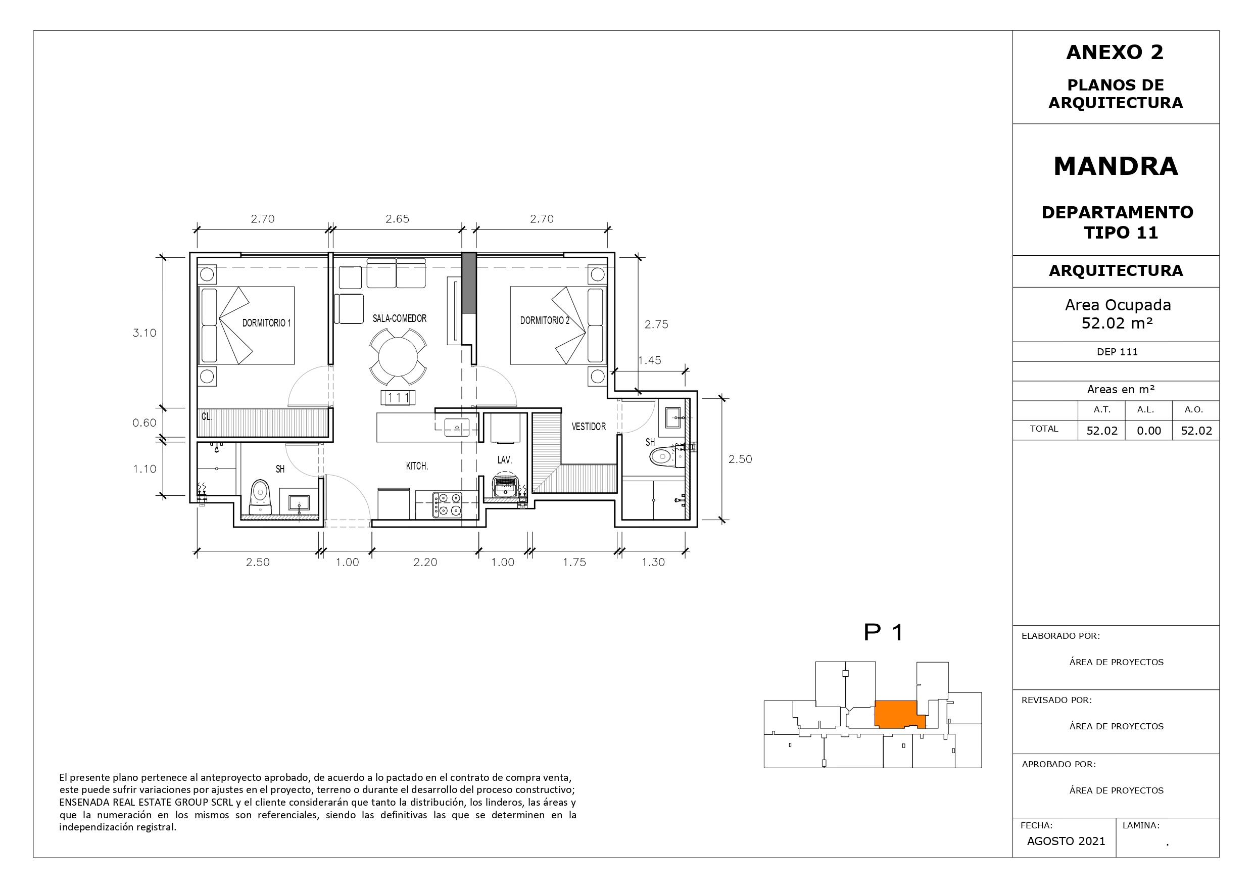
52,02m²
2Dorm
2
Normal:
470,289
Online:
449,126
S/ 2,000
1 in stock
Conoce nuestros ambientes
Lobby con sala de espera
Sala de usos multiples
Terraza
Zona BBQ
