AV EJERCITO 1190, MIRAFLORES
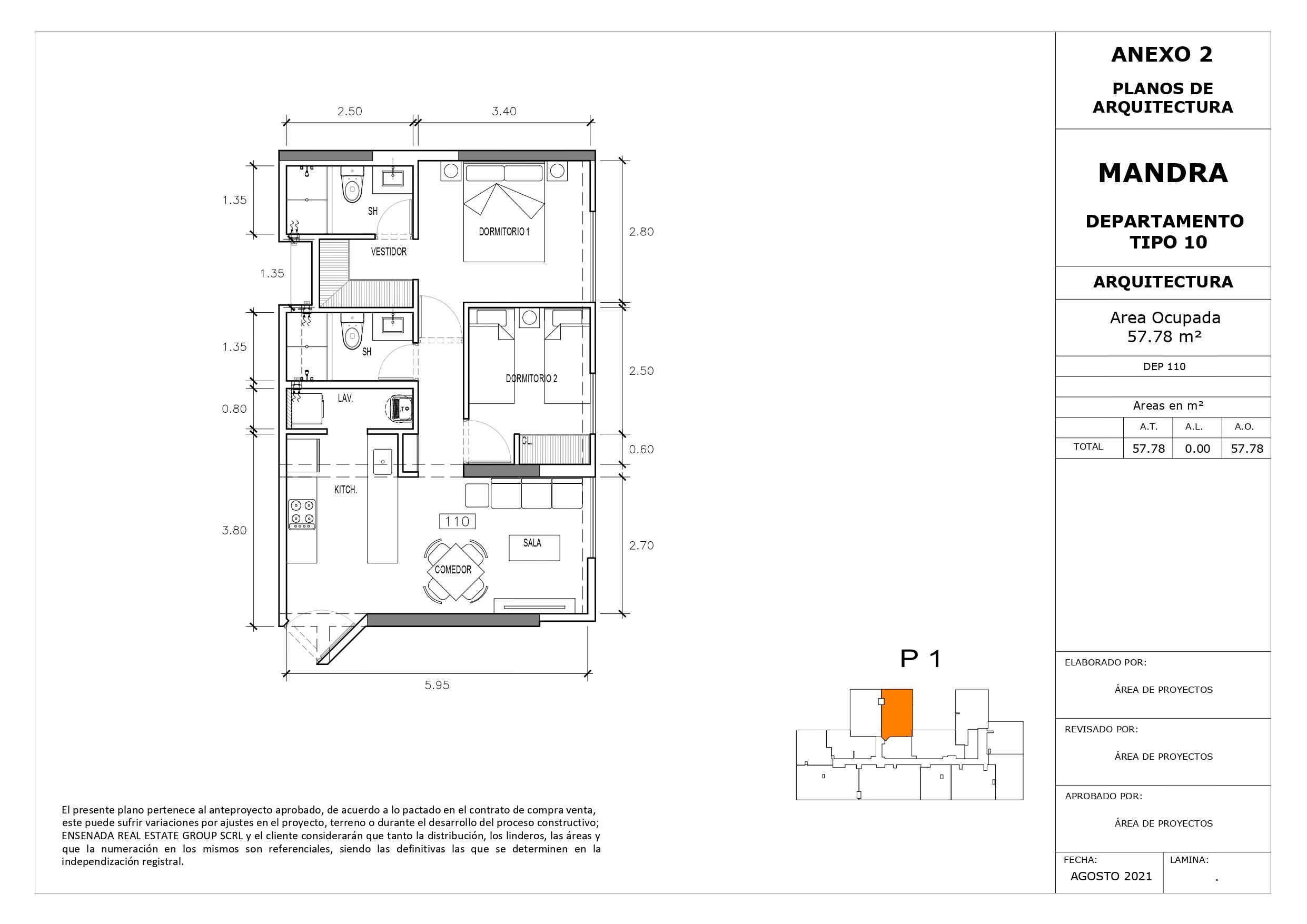
57,78m²
2Dorm
2
Normal:
501,276
Online:
478,719
S/ 2,000
1 in stock
Conoce nuestros ambientes
Lobby con sala de espera
Sala de usos multiples
Terraza
Zona BBQ
