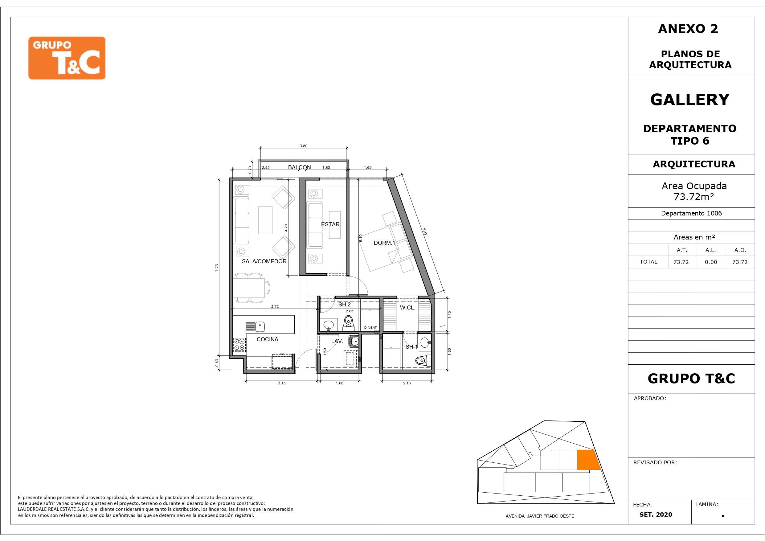
Av Javier Prado Oeste 2177, San isidro
73,72m²
1 + ESTARDorm
2
Normal:
719000
Online:
697430
S/ 6,000
1 in stock
Conoce nuestros ambientes
Zona Lounge,Sum,Spa lounge,Gym,Sala de niños
